
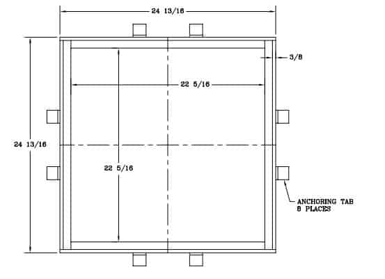
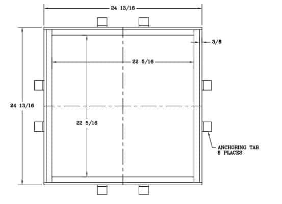
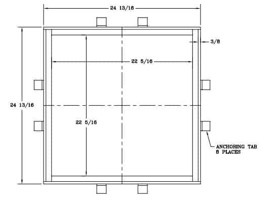
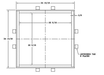
Ductile Iron Frame
Accepts 24″ x 24″ x 1-1/2″ grates (nominal)
DG0653D recommended
Hubbell's POLYCAST® DG0753 Ductile Iron 24" x 24" frame.
Designed to be used with Frame and grate systems or a POLYCAST® DP0753 catch basins as collection points, drain run transitions, and/or interceptors.